With assembly instructions, it is imperative to represent each step of the assembly process with 100% accuracy
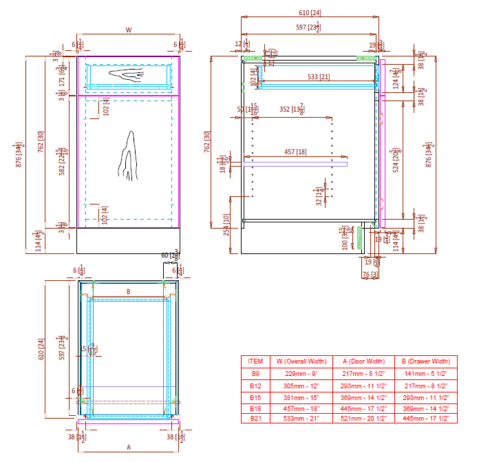
Cubitac provided schematic drawings and PDF instructions which were the blueprints to execute this project. In our meetings, we looked at references and decided how the videos will communicate to the end user.
I was given a lot of creative freedom as long as it was "on brand", and "looked cool". In anticipation of the videos I worked on a couple of still renders for the website that really nailed down the look they were going for.

Each video took roughly 2 weeks to model, compose, animate, render, and edit. Each video had unique challenges that taught me a lot about a 3D animation process.
Cubitac now has an eco-friendly and cost effective way of distributing their assembly instructions to contractors and DIYers with aesthetically pleasing videos.

%20(1).png)
